首页 > 交易信息 > 资产招租 > 挂牌公告

位于苏州高新区滨河路运河铂湾金融广场8幢1101室的公开招租

【信息发布时间:2026-03-18阅读次数:】 【我要打印】 【关闭】

中标贷申请

招标公告,区块链已存证

存证时间:
存证哈希值:
区块高度:
挂牌中
挂牌截止时间:
2026-03-25 16:00
挂牌价
836,209.44
元/年
项目所在地:
苏州资管大厦
联系人:
谈先生
联系电话:
0512-69820623
微信扫一扫“苏交易” 让你交易更高效
报名参与交易或查看更多详情 >>
项目概况
项目名称
位于苏州高新区滨河路运河铂湾金融广场8幢1101室的公开招租
挂牌起始日
2026-03-18
项目编号
SCJR20260476
挂牌终止日
2026-03-25
委托方
苏州苏润置业管理有限公司
看样联系人
陆女士
内部决策情况
联系人电话
13771886775
出租行为批准单位
苏州资耀投资管理有限公司、苏州资产投资管理集团有限公司
资产基本情况
坐落位置
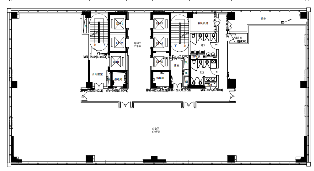
苏州资管大厦
所在楼层
11楼
资产使用现状
使用中
出租面积(m²)
1055.82
装修水平、附属设施等
精装,附属设施以现场实际为准
租期
3年
配套、环境、交通等
苏州资管大厦位于滨河路610号,资产属性商务办公,距离苏州站15分钟车程,距离西环快速路入口980米,距离中环快速路入口4.2公里,距离苏福快速路高架4.6公里;轨道交通3号线、5号线步行5分钟即可到达。
是否设置原承租户优先权
否
其他披露事项
1、现状交付,装修免租期3个月。 2、履约保证金为3个月租金。
出租条件
租金挂牌底价
836209.44 元/年
租金支付要求
按自然季度支付。
租金调整方式
无
免租期
3个月
租金以外费用
承租方自行向物业缴纳租赁期限内该租赁区域发生的物业费、公共能耗费、电费等公共事业费用(如遇无法拆分的情形,可根据实际租赁面积按面积比例进行分摊)
使用用途及要求
适用于办公,谢绝典当、民间借贷等高金融风险类经营机构,以及教培机构、健身房、茶馆、棋牌室等与大厦办公定位不符的业态;
与出租相关的其他条件
租赁期内房屋允许装修改造,承租方不得擅自改变房屋用途、结构或进行违法搭建,如涉及隔断、水电等管线移位、效果等必须经过产权方同意并将装修方案设计图纸提交产权方备案,否则产权方有权解除合同提前收回该出租房屋;本招租区域为整体出租,不得转租或分割出租。
交易信息
报名保证金
209052.36元
履约保证金
三个月租金
保证金交纳
挂牌期满前支付至交易中心任一指定账户(以到账时间为准),逾期将视为放弃本次报名机会。
(1)邮政储蓄银行账号
开户银行:中国邮政储蓄银行股份有限公司苏州市高新区支行
账号名称:苏州产权交易中心有限公司
银行账号:932056013000477498
开户行地址:苏州市虎丘区塔园路150号
(2)江苏银行账号
开户银行:江苏银行苏州虹桥支行
账号名称:苏州产权交易中心有限公司
银行账号:30190188000050167
开户行地址:江苏省苏州市姑苏区金阊街道干将西路1168号
报名保证金处置方式
成为最终承租方,报名保证金优先扣除服务费,剩余部分转履约保证金(或履约保证金和首期租金);未成为最终承租方,报名保证金按原支付路径返回。
保证金扣除情形

为保护交易各方的合法权益,意向承租方一旦报名参与项目、交纳保证金且通过资格确认,即获得交易资格,即完全同意如下内容并作出承诺,及同意以下保证金扣除情形(出租方违约等原因除外):

1、如出现“获得交易资格的意向承租方(竞买方)均未作出有效报价”情形,产交中心有权从意向承租方交纳的保证金中扣除最低交易服务费,剩余部分视出租方提出的赔偿额,划转至出租方指定账户。

2、非因出租方的原因,意向承租方存在以下任意一种情形,产交中心有权直接从意向承租方(承租方)交纳的保证金中扣除产交中心预期应收交易服务费,剩余部分根据出租方提出的损失赔偿额划转至出租方指定账户;保证金不足以赔偿的,损失方有权通过司法途径继续追偿:

(1)意向承租方提供虚假、失实材料的;

(2)各意向承租方之间相互串通,影响公平竞争,侵害出租方合法权益的;

(3)成交后,无故不推进交易或无故放弃承租的;

(4)被确定为承租方后,在公告约定时间内拒绝与出租方签订相应合同或不履行合同义务的;

(5)意向承租方违反法律法规或相关规定给出租方、产交中心造成损失的。

资格条件
1、具有独立承担民事责任能力的自然人(含个体工商户)、企业法人或其他组织; 2、具有良好的财务状况、支付能力和社会信用; 3、符合法律法规规定以及标的资产经营业态要求的其他条件; 4、有依法缴纳税收和社会保障资金的良好记录; 5、参加采购活动近三年内,在经营活动中没有重大违法记录,提供声明书(见公告附件模版)。
报名注意事项

1、公告期内每星期一至星期五9:00-15:00可预约现场看样时间,请至少提前半天预约。

2、意向承租方应在挂牌终止日16:00前办理登记报名手续。

  ●  线下报名:意向承租方可在公告期内至苏州市高新区邓尉路105号狮山科技馆五楼507室办理报名手续,受理时间:上午9:00-11:00,下午13:00-16:00,不含节假日。

  ●  线上报名:意向承租方可在挂牌终止日16:00前点击“我要报名”,登陆实名认证小程序,线上提交报名材料。

3、办理报名登记请准备以下材料:

  ●  企业或其他组织:营业执照、法定代表人/主要负责人身份证、授权委托书、受托人身份证、账户信息等。

  ●  自然人:身份证、账户信息(银行卡)等。

4、登记报名期限结束后,将不再接受其他任何意向承租方报名。

遴选方案主要内容

至本公告挂牌期满,

1、只产生一个符合条件的意向承租方的,该意向承租方直接以租金挂牌底价成交。

2、征集到两个及以上符合条件的意向承租方的,由产交中心组织电子竞价多次报价确定最终承租方和承租价格。

    起拍价:租金挂牌底价

    自由竞价时长:10分钟    

    延时阶段时长:3分钟

    加价幅度:5000元/年

    点击查看《苏州产权交易中心产权交易电子竞价规则》

其他说明
其他说明

1、参与电子竞价的意向承租方获得交易资格后,请准时参与电子竞价活动,项目成交之日起2个工作日内发布成交公示;第三方机构实施线下择优遴选成交的项目,产交中心在收到项目成交材料之日起2个工作日内发布成交公示。成交公示期为5个工作日。

2、最终承租方确认后,产交中心于3个工作日内将其他意向承租方交纳的保证金一次性全额返还,不计息。

3、成交公示期满无异议的,成交方(最终承租方)须在5个工作日内与出租方签订《资产租赁合同》,承租方还应将首期租金及履约保证金缺额部分(以租赁合同约定为准)于签约之日起7个工作日内足额一次性支付至产交中心指定结算账户,以后各期租金根据租赁合同约定支付至出租方指定账户。产交中心在收到租赁双方签订的《资产租赁合同》、结算资金以及应收交易服务费后3个工作日内向交易双方出具公开招租交易凭证。

4、本公告仅为本次项目的简要说明。意向承租方在做出承租决定之前,应首先仔细阅读本公告内容以及出租方提供的其他资料(标的资产权属证明和租赁合同模版等材料可在公告期间内联系产交中心工作人员查阅),并在本项目公告期间实地踏勘,充分了解资产状况。意向承租方递交本项目报名申请并交纳保证金,即表明已完全了解与认可出租房屋状况及所有出租条件,自愿接受出租房屋的全部现状及瑕疵,并愿承担一切交易风险与责任。成为承租方后不得以不了解出租房屋状况、瑕疵等为由主张退还出租房屋或拒付租金,否则即视为违约。

以上情况说明仅供参考,招租标的不排除有未知事项及瑕疵的存在(包括但不限于已告知部分),意向承租方交纳保证金参与标的资产公开招租,即表明已充分考虑未知、瑕疵风险因素和其他综合因素,愿意按照招租标的当前实际状况承租。

服务费事项

一、产交中心组织成交的项目,按照《苏州产权交易中心资产招租项目收费标准》向承租方收取交易服务费(承租方按收费标准承担双方应付服务费)。

二、由第三方机构实施择优遴选的,产交中心根据与出租方、第三方机构的合同约定收取交易服务费。第三方机构收取的相关服务费,与产交中心无涉。